
UPDATED:
Key Details
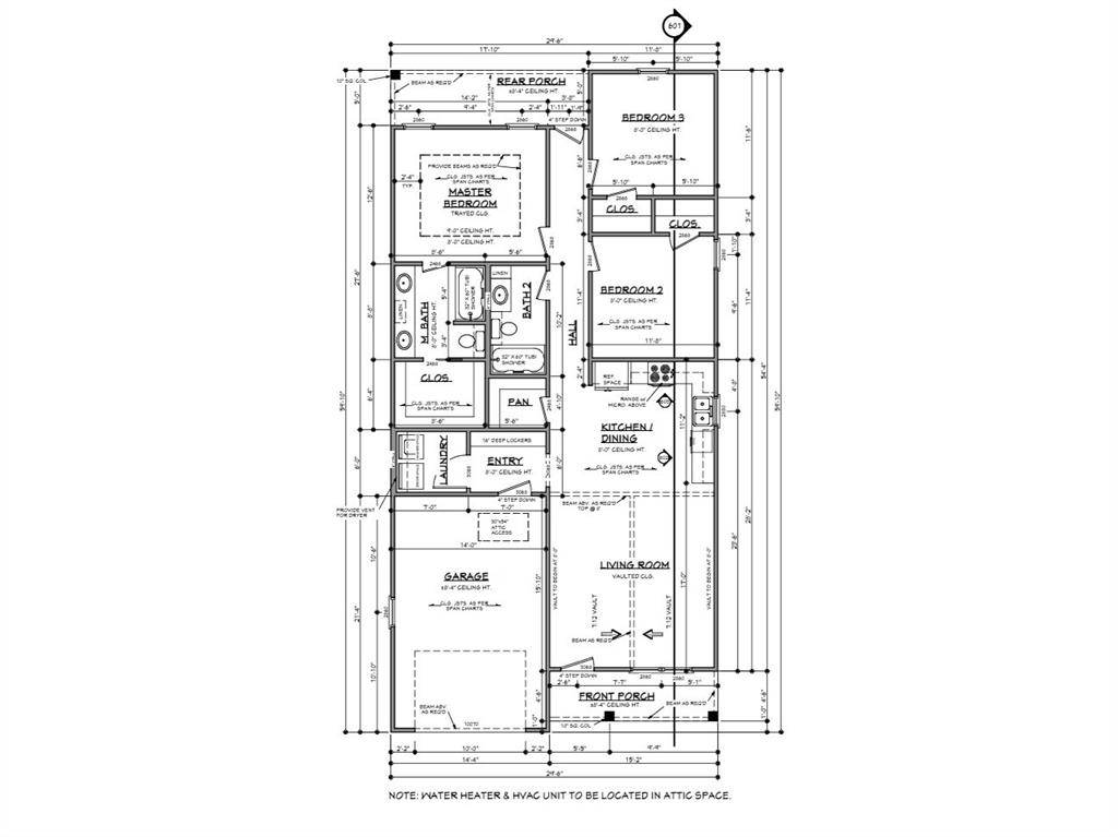
Property Type Single Family Home
Sub Type Single Family Residence
Listing Status Pending
Purchase Type For Sale
Square Footage 1,292 sqft
Subdivision Northwood Addn Cont 2
MLS Listing ID 21136843
Bedrooms 3
Full Baths 2
HOA Y/N None
Year Built 2025
Lot Size 4,791 Sqft
Acres 0.11
Property Sub-Type Single Family Residence
Property Description
Location
State TX
County Taylor
Direction Bel Air north of Ambler 2 streets west of N Willis, south of Stamford (access rd to I-20) north of Minter Lane C of C.
Rooms
Dining Room 0
Interior
Interior Features Other
Heating Central, Electric
Cooling Central Air, Electric
Appliance Dishwasher, Disposal, Electric Range
Heat Source Central, Electric
Exterior
Garage Spaces 1.0
Utilities Available Electricity Connected, MUD Sewer, MUD Water
Total Parking Spaces 1
Garage Yes
Building
Lot Description Interior Lot
Story One
Level or Stories One
Structure Type Siding
Schools
Elementary Schools Robert And Sammye Stafford
Middle Schools Mann
High Schools Abilene
School District Abilene Isd
Others
Acceptable Financing Cash, Conventional, FHA, VA Loan
Listing Terms Cash, Conventional, FHA, VA Loan
Virtual Tour https://www.propertypanorama.com/instaview/ntreis/21136843

Get More Information





